Коттедж 670 кв.м в классическом английском стиле г. Стрельна ул. Романовская д. 13
Санкт-Петербург, Петродворцовый район, г. Стрельна ул. Романовская д. 13
Фотографии коттеджа
Фотографии реальны и сделаны при личном осмотре!

Внешний облик дома

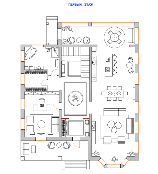
Первый этаж:
На первом этаже расположена потрясающая кухня-гостиная с камином 90 кв.м. и выходом в застекленный панорамный зимний сад 25 кв.м. , гостевая спальня или кабинет 28 кв.м, гардеробная 8,5 кв.м., и с/у с двумя окнами 16 кв.м.

Зимний сад-терраса

Второй этаж:
На втором этаже расположены:
мастер-спальня 37,5 кв.м. со своей гардеробной 6 кв.м , с/у 6 кв.м. и балконом
2 спальни 35 кв.м и 28 кв.м
Холл с выходом на террасу 22,5 кв.м.
Домашняя спа-зона 28,5 кв.м.


Паркинг
Видео-экскурсия по коттеджу
Преимущества
Поcтроен по новейшим технологиям,с использованием высококачественных материалов. Строили для себя с душой и на совесть. Продажа в связи с переездом в Москву.

Красивый внешний вид, полностью продуманная планировка для стильной и комфортной жизни!

Паркинг в цоколе дома на 4 и более машин . Высота жилых помещений от 3,5 метра

Городская прописка - Петродворцовый район.

  • О доме
    Стены кирпич , фундамент - монолитная плита, крыша- черепица.

    Зонально сделан подогрев полов.

    В зоне гостиной сделан камин.

    Деревянное панорамное остекление, 3 этаж полноценное мансардное помещение с высотой от 3 метров.

  • Инфраструктура
    Тихое спокойное место , в пешей доступности от Константиновского дворца, в 5 минутах езды находится Петродворец. Отличная транспортная доступность, неподалёку съезд на кольцевую автодорогу, не бывает пробок в отличии от других загородных направлений Санкт-Петербурга.
  • О сделке
    + Все документы готовы к продаже
    + 1 взрослый собственник
    + Легкая встречная покупка
    + Без обременений
    + Полная стоимость в договоре
    + Возможна помощь в оформлении ипотеки
  • Участок и коммуникации
    Городские коммуникации - центр вода, газ - г/котёл, канализация-септик, свет - 15 кВт 3 фазы.

    Участок - 13 соток ИЖС участок ровный, правильной формы, ограждён, есть возможность приобретения соседнего участка для увеличения площади земли.
Стоимость
67 000 000 руб.
Местоположение на карте
СПб, Петродворцовый район, п. Стрельна, ул. Романовская , д. 13
Абанина Егория
Телефон: +7 (969) 708-69-86
E-mail: 9345394@mail.ru
Вы можете связаться со мной удобным для Вас способом.
Специалист по Недвижимости